Skip to main content
PRODOTTI | UMIDIFICATORI
400ILAN

DISTRIBUTORI DI VAPORE IN ACCIAIO INOX

DISTRIBUTORI DI VAPORE IN ACCIAIO INOX

    Linea di accessori progettati per la diffusione ottimizzata del vapore degli umidificatori PEGO EASYSTEAM in canalizzazioni, installazioni e applicazioni particolari. L’ampia gamma di modelli garantisce il rendimento e una semplice installazione in qualsiasi situazione.

    DISTRIBUTORI DI VAPORE IN ACCIAIO INOX
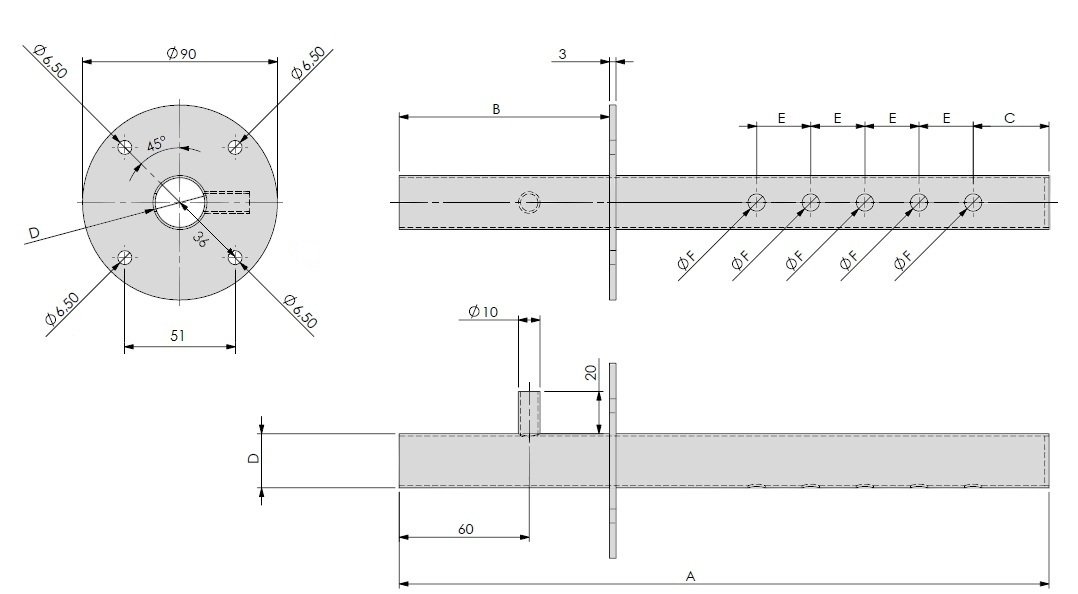
      Descrizione
      • Distributori lineari di vapore per condotta con staffa di fissaggio e recupero condensa costituiti completamente in acciaio INOX, disponibili in varie lunghezze e due differenti diametri: 25mm e 40mm.

      Applicazioni
      • Distribuzione vapore in canalizzazioni.

      • Distribuzione vapore in celle.

      • Distribuzione vapore in applicazioni custom.

      Caratteristiche Tecniche
      A (mm) B (mm) C (mm) D (mm) E (mm) F (mm) G (Fori)
      400ILAN25X200 300 97 30 25 22 10 6
      400ILAN25X250 350 97 30 25 23 9 8
      400ILAN25X350 450 97 30 25 37 9 8
      400ILAN25X500 600 97 30 25 46 8 10
      400ILAN25X650 750 97 30 25 62 8 10
      400ILAN25X800 900 97 30 25 79 8 10
      400ILAN25X1000 1100 97 30 25 90 8 11
      400ILAN25X1050 1150 97 30 25 90 8 11
      400ILAN25X1100 1200 97 30 25 90 8 12
      400ILAN40X200 300 97 30 40 27 15 5
      400ILAN40X250 350 97 30 40 31 15 6
      400ILAN40X350 450 97 30 40 36 13 8
      400ILAN40X500 600 97 30 40 45 13 10
      400ILAN40X650 750 97 30 40 60 13 10
      400ILAN40X800 900 97 30 40 78 13 10
      400ILAN40X1000 1100 97 30 40 100 13 10
      400ILAN40X2000 2100 97 30 40 200 13 10
      400ILAN40X3000 3100 97 30 40 200 13 15
      400ILAN40X3500 3600 97 30 40 200 13 17
      Ingombri